Negozio in affitto

Garlate, Via Puncia
€ 2.500 / mese
Prezzo aggiornato
7 locali 7 locali
500 Mq 500 Mq
3 bagni 3 bagni

Negozio in affitto

Garlate, Via Puncia

Descrizione annuncio

COSA SAPERE DELL'IMMOBILE

PER INFORMAZIONI ED APPUNTAMENTI CHIAMA 0341 246647

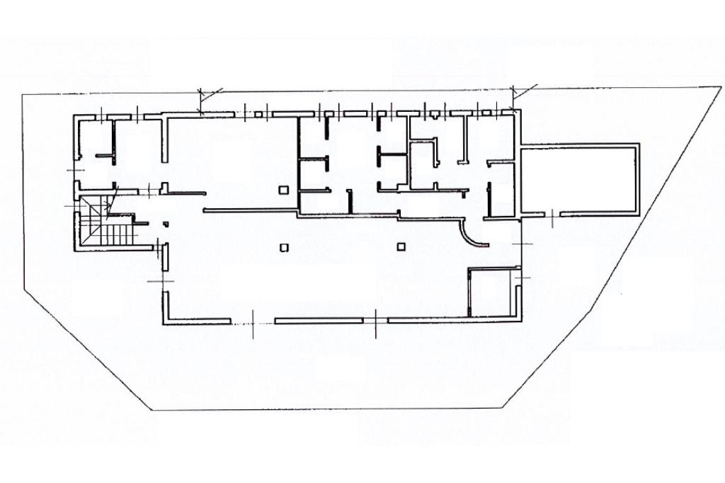
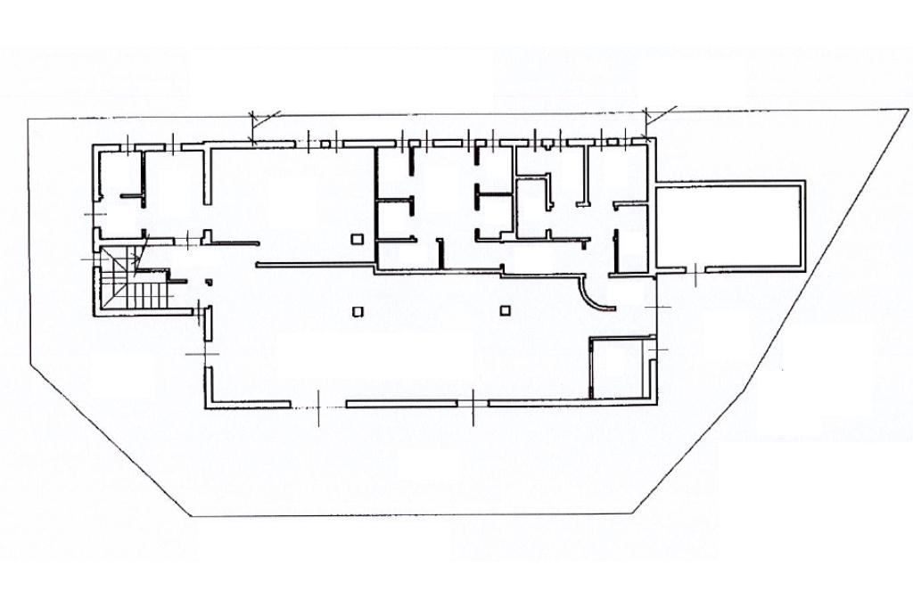
Proponiamo in locazione un negozio con superficie di 500 metri quadrati; di cui 50 metri quadrati adibiti a magazzino e ulteriori 330 metri quadrati di area esterna.

DESCRIZIONE E PARTICOLARITA'

Il negozio misura 450 metri quadrati e si sviluppa su tre livelli. La soluzione è suddivisa in sette locali ed è dotata di tre servizi igienici a norma disabili. L'ambiente risulta particolarmente luminoso grazie alla presenza di ampie finestre. Il locale possiede l'impianto di riscaldamento e condizionamento, l'impianto elettrico e quello di illuminazione. La struttura è servita da un sistema antincendio a idranti e da porta tagliafuoco. L'immobile è dotato di canna fumaria e forno elettrico. Inoltre, è cablato.

A garanzia degli esatti adempimenti contrattuali, sono richieste sei mensilità di deposito cauzionale.

UBICAZIONE E CONTESTO

Il complesso è ubicato nel Comune di Garlate, a pochi minuti di distanza dalla Strada Provinciale SP59, la quale collega il paese ai Comuni limitrofi. Esternamente, dispone di circa un’ottantina di posti auto ad uso pubblico.

Mostra tutto

Nelle vicinanze

Trasporto pubblico Trasporto pubblico
stazione di Lecco Maggianico
stazione di Lecco Maggianico
2,3 Km
stazione di Calolziocorte-Olginate
stazione di Calolziocorte-Olginate
2,3 Km
Trasporto pubblico
1,6 Km
Chiuso capolinea
Chiuso capolinea
1,6 Km
Vercurago - San Girolamo
Vercurago - San Girolamo
1,7 Km
Ricariche auto elettriche Ricariche auto elettriche
Municipio di Galbiate | ACEL ENERGIE
2,2 Km
ACELENERGIE Via Buozzi LECCO
3,0 Km
Scuole Scuole
Scuola Primaria Anna Frank
500 m
Scuola Media Statale Giosuè Carducci
1,3 Km
Scuola Primaria T. Tarelli
1,8 Km
Scuole
1,8 Km
Scuola Primaria Antonio Stoppani
2,1 Km
Farmacia Farmacia
Farmacia dott. Bonato
170 m
Farmacia dott.sa Fedeli
1,4 Km
Farmacia Bellan
1,9 Km
Farmacia
1,9 Km
Farmacia Dr. Brambilla
2,3 Km
Supermercati Supermercati
Crai Extra
450 m
Punto Simply
1,9 Km
Conad
1,9 Km
MD
2,2 Km
Legler Market e Legler Moda
2,6 Km
Negozi Negozi
Negozi
2,1 Km
Bar Bar
Taxi Lounge Bar
440 m
Family Bar
850 m
Bar Glicine
850 m
Molo - Lido di Vercurago
1,2 Km
Bar
1,6 Km
Ristoranti Ristoranti
Barbera & Champagne
620 m
FantasyPizza
670 m
La Grotta Azzurra
780 m
Al Vecchio Kalkerin
1,1 Km
Pizzeria Controvento
1,2 Km
Mostra tutto

Caratteristiche

Rif.:
61177752
Piano:
Su più livelli di 3
Totale piani:
3
Posti auto:
80
Condizionamento:
Autonomo
Ascensore:
No
Mostra tutto
Prezzo Prezzo
€ 2.500 / mese
Spese annue Spese annue
€ 0

Classe Energetica

Questo immobile è esente da classe energetica
Anno di costruzione:
1970
Riscaldamento:
Autonomo
Tipo impianto:
Ad aria
Tipo alimentazione:
Altro

Prezzo ridotto di €1 (11%%)

Ti interessa visionare l'immobile?

Fissa un appuntamento  Fissa un appuntamento

Richiedi informazioni

Clicca su Leggi per aprire l'informativa
* Questi campi sono obbligatori
Affiliato
Industriale Lecco Srl
Corso Carlo Alberto, 50 23900 Lecco (LC)

Il nostro staff


  • Alesjon Brakaj
    Collaboratore

  • Carlotta Cavasino
    Collaboratrice

  • Gaia Marino
    Coordinatrice

  • Gabriele Cucchi
    Affiliato
Corso Carlo Alberto, 50 23900 Lecco (LC)
Zona: Lecco
Mostra su mappa
Affiliato
Industriale Lecco Srl
Corso Carlo Alberto, 50 23900 Lecco (LC)

2026 Tecnocasa Franchising S.p.A. - P. IVA 08365160152 - Via Monte Bianco 60/A 20089 Rozzano (MI). Ogni agenzia ha un proprio titolare ed è autonoma. Privacy policy | Policy utilizzo | Cookie policy