Ufficio in affitto

Lecco, Corso Emanuele Filiberto
7 locali 7 locali
520 Mq 520 Mq
6 bagni 6 bagni

Ufficio in affitto

Lecco, Corso Emanuele Filiberto

Descrizione annuncio

COSA SAPERE DELL'IMMOBILE

PER INFORMAZIONI ED APPUNTAMENTI CHIAMA 0341 246647

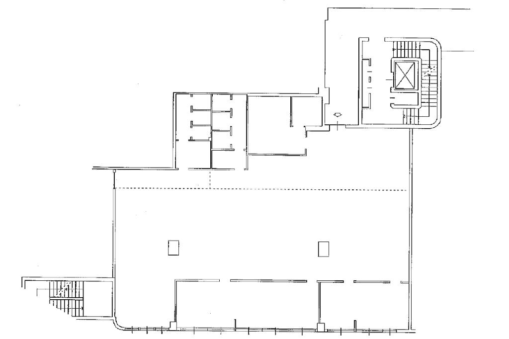
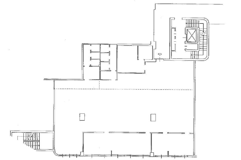
Proponiamo in locazione un ufficio con superficie di circa 400 metri quadrati, con ulteriori 110 metri quadrati adibiti a magazzino.

DESCRIZIONE E PARTICOLARITA'

L'ufficio misura circa 400 metri quadrati e si trova al secondo piano di una struttura direzionale che si sviluppa su quattro livelli. La struttura è attualmente divisa in sette locali ed è dotata di sei servizi igienici a norma disabili. La soluzione è servita dall'impianto di riscaldamento e condizionamento, dall'impianto elettrico e quello di illuminazione. L'ambiente risulta ben illuminato grazie alla presenza di ampie finestre. L'immobile, controsoffittato, è munito del sistema di allarme e di sistema antincendio. Inoltre, presenta la porta blindata, è cablato e possiede la connessione ad Internet a banda larga. Dispone di ulteriori 110 metri quadrati adibiti a magazzino, con altezza pari a 3,70 metri. Il magazzino è accessibile tramite un portone alto 3,00 metri e largo 5,00 metri.

UBICAZIONE E CONTESTO

Il complesso è ubicato nel Comune di Lecco, a pochi minuti di distanza dalla Strada Statale SS36 che collega la città ai Comuni limitrofi. Il fabbricato gode di alcuni parcheggi pubblici posizionati di fronte alla soluzione. Disponibili otto posti auto esclusivi.

Mostra tutto

Nelle vicinanze

Trasporto pubblico Trasporto pubblico
stazione di Lecco Maggianico
stazione di Lecco Maggianico
740 m
stazione di Lecco
stazione di Lecco
2,5 Km
Trasporto pubblico
280 m
La Piccola Mercato
La Piccola Mercato
1,8 Km
Lecco
2,7 Km
Ricariche auto elettriche Ricariche auto elettriche
ACELENERGIE Via Buozzi LECCO
300 m
ACELENERGIE VIA dell'isola LECCO
1,7 Km
ACELENERGIE Via alla Chiesa Lecco
1,9 Km
Acelenergie via Appiani Lecco
1,9 Km
Acelenergie Canottieri Lecco
2,4 Km
Scuole Scuole
Scuola Primaria Enrico Toti
730 m
Scuola Secondaria di Primo Grado Amilcare Ponchielli
1,2 Km
Scuola Primaria di Belledo
1,2 Km
Istituto Istruzione Superiore "Pier Angelo Fiocchi"
1,6 Km
Scuola Secondaria di Primo Grado Antonio Stoppani
1,6 Km
Farmacia Farmacia
Castelli
820 m
Farmacia Belledo
1,1 Km
Farmacia Dr. Brambilla
1,3 Km
Pescarenico
1,6 Km
Farmacia
1,7 Km
Ospedali Ospedali
Ospedale Alessandro Manzoni
1,7 Km
Supermercati Supermercati
Esselunga
660 m
Bennet
1,2 Km
Eurospin
1,4 Km
Conad
1,5 Km
MD
1,6 Km
Negozi Negozi
Una bottega di rione
1,2 Km
Sotto Sopra
2,1 Km
Panificio Gilardi
2,1 Km
L'Atelier di Carla
2,2 Km
Luisa Spagnoli
2,2 Km
Bar Bar
Bar
220 m
latteria gelateria bar Castelnuovo
310 m
Bar Speedy
1,5 Km
Bar Margherita
2,0 Km
Enoteca Cantun del Vin
2,5 Km
Ristoranti Ristoranti
Osteria Olga
300 m
Pizz...emolo
1,1 Km
Kathmandu
1,2 Km
vecchia pescarenico
1,3 Km
Pizzeria Bella Napoli
1,3 Km
Mostra tutto

Caratteristiche

Rif.:
61199661
Piano:
2 di 4 con ascensore (Piano medio)
Posti auto:
8
Condizionamento:
Autonomo
Ascensore:
Riscaldamento:
Autonomo
Mostra tutto
Prezzo Prezzo
€ 4.500 / mese
Spese annue Spese annue
€ 2.400
Anche in vendita a

Classe Energetica

Questo immobile è esente da classe energetica
Anno di costruzione:
1990
Riscaldamento:
Autonomo
Tipo impianto:
A radiatori
Tipo alimentazione:
Metano

Ti interessa visionare l'immobile?

Fissa un appuntamento  Fissa un appuntamento

Richiedi informazioni

Clicca su Leggi per aprire l'informativa
* Questi campi sono obbligatori
Affiliato
Industriale Lecco Srl
Corso Carlo Alberto, 50 23900 Lecco (LC)

Il nostro staff


  • Alesjon Brakaj
    Collaboratore

  • Carlotta Cavasino
    Collaboratrice

  • Gaia Marino
    Coordinatrice

  • Gabriele Cucchi
    Affiliato
Corso Carlo Alberto, 50 23900 Lecco (LC)
Zona: Lecco
Mostra su mappa
Affiliato
Industriale Lecco Srl
Corso Carlo Alberto, 50 23900 Lecco (LC)

2026 Tecnocasa Franchising S.p.A. - P. IVA 08365160152 - Via Monte Bianco 60/A 20089 Rozzano (MI). Ogni agenzia ha un proprio titolare ed è autonoma. Privacy policy | Policy utilizzo | Cookie policy