Ufficio in vendita

Lecco, Via Azzone Visconti
€ 325.000
Prezzo aggiornato
1 locale 1 locale
210 Mq 210 Mq
1 bagno 1 bagno

Ufficio in vendita

Lecco, Via Azzone Visconti

Descrizione annuncio

COSA SAPERE DELL'IMMOBILE

PER INFORMAZIONI ED APPUNTAMENTI CHIAMA 0341 246647

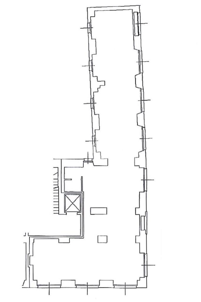
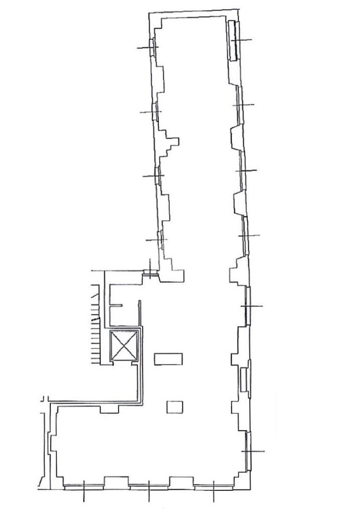
Proponiamo in vendita un ufficio con superficie complessiva di circa 210 metri quadrati disposti in un unico locale al piano terra di una struttura condominiale di quattro livelli.

DESCRIZIONE E PARTICOLARITA'

La soluzione misura circa 210 metri quadrati, è composta da un unico locale al piano terra e presenta un servizio igienico non a norma disabili. La struttura è controsoffittata, ha un'altezza di circa 3,50 metri, è caratterizzata da una pavimentazione con piastrelle e risulta molto luminosa grazie alla presenza di otto ampie vetrine. L'immobile presenta l'impianto di riscaldamento e di condizionamento autonomi, l'impianto elettrico e d’illuminazione. L'ufficio è cablato ed è dotato di luci e uscite di emergenza

UBICAZIONE E CONTESTO

Il locale si trova nel centro del Comune di Lecco a pochi chilometri dalla Strada Statale 36 ed esternamente presenta circa cinquanta posti auto pubblici.

Mostra tutto

Nelle vicinanze

Trasporto pubblico Trasporto pubblico
stazione di Lecco
stazione di Lecco
680 m
stazione di Valmadrera
stazione di Valmadrera
1,9 Km
Piazza Mazzini
Piazza Mazzini
270 m
La Piccola Mercato
La Piccola Mercato
330 m
Lecco
700 m
Ricariche auto elettriche Ricariche auto elettriche
Acelenergie via Appiani Lecco
140 m
ACELENERGIE VIA dell'isola LECCO
330 m
Acelenergie Canottieri Lecco
390 m
ACELENERGIE imbarcadero LECCO
810 m
Hotel Promessi Sposi & Ristorante Da Giovannino
1,1 Km
Scuole Scuole
Scuola Primaria Edmondo De Amicis
280 m
Liceo Classico e Linguistico Alessandro Manzoni
300 m
Collegio arcivescovile Alessandro Volta
320 m
Edificio 10
340 m
Edificio 05
360 m
Farmacia Farmacia
Farmacia Provasi
290 m
Farmacia
320 m
Pescarenico
380 m
Equì
410 m
Farmacia Centrale
420 m
Ospedali Ospedali
Ospedale Alessandro Manzoni
1,8 Km
Supermercati Supermercati
Punto Simply
330 m
Eurospin
950 m
Bennet
1,0 Km
MD
1,1 Km
Conad
1,1 Km
Negozi Negozi
Sotto Sopra
130 m
Panificio Gilardi
190 m
Luisa Spagnoli
200 m
Original Marines
220 m
Quore
240 m
Bar Bar
Bar Margherita
90 m
Enoteca Cantun del Vin
510 m
Bar Speedy
530 m
Sunflower
720 m
Natante Dalia
830 m
Ristoranti Ristoranti
Sakura
120 m
Ristorante Borgo Scacciaventi
300 m
public house
390 m
Bistrot Mamaioa
440 m
Pentagramma
450 m
Mostra tutto

Caratteristiche

Rif.:
61152010
Piano:
Terra di 4
Totale piani:
4
Posti auto:
50
Condizionamento:
Autonomo
Ascensore:
No
Mostra tutto
Prezzo Prezzo
€ 325.000
Rata mutuo Rata mutuo
€ 1.532 / mese
Spese annue Spese annue
€ 0
Proponi il tuo prezzoProponi il tuo prezzo

Classe Energetica

Questo immobile è esente da classe energetica
Anno di costruzione:
1980
Riscaldamento:
Autonomo
Tipo impianto:
Ad aria
Tipo alimentazione:
Aria

Prezzo ridotto di €1 (8%%)

Ti interessa visionare l'immobile?

Fissa un appuntamento  Fissa un appuntamento

Richiedi informazioni

Clicca su Leggi per aprire l'informativa
* Questi campi sono obbligatori

Calcola il tuo mutuo

Semplice e senza impegno
Anticipo

( % )
Mutuo

( % )

pochi semplici passi

inserisci i tuoi dati
Questionario completato
Grazie per aver richiesto un appuntamento senza impegno con un nostro Consulente del Credito e Assicurativo.

Hai inserito correttamente tutti i dati necessari e a breve riceverai una e-mail con un link da convalidare per inviare i tuoi dati.
Affiliato
Industriale Lecco Srl
Corso Carlo Alberto, 50 23900 Lecco (LC)

Il nostro staff


  • Alesjon Brakaj
    Collaboratore

  • Carlotta Cavasino
    Collaboratrice

  • Gaia Marino
    Coordinatrice

  • Gabriele Cucchi
    Affiliato
Corso Carlo Alberto, 50 23900 Lecco (LC)
Zona: Lecco
Mostra su mappa
Affiliato
Industriale Lecco Srl
Corso Carlo Alberto, 50 23900 Lecco (LC)

2026 Tecnocasa Franchising S.p.A. - P. IVA 08365160152 - Via Monte Bianco 60/A 20089 Rozzano (MI). Ogni agenzia ha un proprio titolare ed è autonoma. Privacy policy | Policy utilizzo | Cookie policy