Capannone in affitto

Valmadrera, Via Trebbia
€ 3.300 / mese
Prezzo aggiornato
10 locali 10 locali
900 Mq 900 Mq
2 bagni 2 bagni

Capannone in affitto

Valmadrera, Via Trebbia

Descrizione annuncio

COSA SAPERE DELL'IMMOBILE

PER INFORMAZIONI ED APPUNTAMENTI CHIAMA 0341 246647

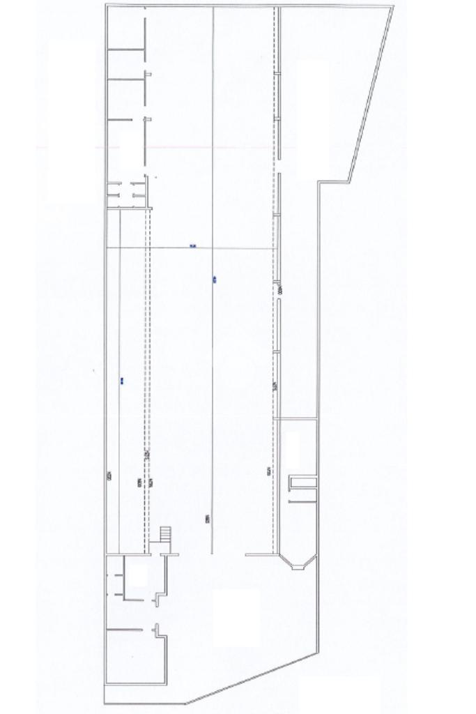
Il lotto proposto in affitto dispone di una superficie complessiva di circa 1150 metri quadrati, di cui 750 metri quadrati di capannone, circa 150 metri quadrati di uffici e di circa 250 metri quadrati di area esterna recintata.

DESCRIZIONE E PARTICOLARITA'

Il capannone misura circa 750 metri quadrati disposti in una sola campata al piano terra di un edificio di un unico livello. Possiede di due bagni con spogliatoi e docce e di un locale mensa. La struttura ha un'altezza di circa 8 metri, sottotrave di 6 metri. Dispone di carroponte da 6 tonnellate. L’immobile presenta l’impianto di riscaldamento, l’impianto di condizionamento, l’impianto elettrico e d’illuminazione.

UBICAZIONE E CONTESTO


Il lotto si trova nel Comune di Valmadrera e gode di dieci posti auto.

Mostra tutto

Nelle vicinanze

Trasporto pubblico Trasporto pubblico
stazione di Valmadrera
stazione di Valmadrera
1,9 Km
Trasporto pubblico
1,8 Km
Località piazzale Alpini
Località piazzale Alpini
1,9 Km
Valmadrera
2,8 Km
Civate
Civate
890 m
Ricariche auto elettriche Ricariche auto elettriche
Valmadrera Sabatelli | EnelX
2,0 Km
Evbility per AIROLDI ENZO Meccatronico VALMADRERA
2,0 Km
Hotel Promessi Sposi & Ristorante Da Giovannino
2,8 Km
Scuole Scuole
Scuola Primaria Giacomo Leopardi
940 m
Scuola Secondaria di Primo Grado L.B.Vassena
1,8 Km
Scuola Primaria Don Milani
2,5 Km
Scuola secondaria di Malgrate
2,6 Km
Scuola Nautica Patenti
2,8 Km
Farmacia Farmacia
Farmacia Caserta
660 m
Farmacia
2,1 Km
Farmacia Barbone
2,2 Km
Supermercati Supermercati
MD
2,2 Km
EuroSpin
2,2 Km
Negozi Negozi
Negozi
1,2 Km
Sigma
1,5 Km
Panificio Beretta
2,7 Km
Bar Bar
Aire Bar
2,7 Km
Ristoranti Ristoranti
Calamaretto
590 m
Hostaria da Edo
830 m
Dogana vecchia
1,0 Km
Il Galeone
1,1 Km
Agriturismo Rusconi
1,3 Km
Mostra tutto

Caratteristiche

Rif.:
61144592
Piano:
Terra di 1
Totale piani:
1
Posti auto:
10
Condizionamento:
Autonomo
Ascensore:
No
Mostra tutto
Prezzo Prezzo
€ 3.300 / mese
Spese annue Spese annue
€ 0

Classe Energetica

Questo immobile è esente da classe energetica
Anno di costruzione:
1970
Riscaldamento:
Autonomo
Tipo impianto:
A radiatori
Tipo alimentazione:
Metano

Prezzo ridotto di €1 (6%%)

Ti interessa visionare l'immobile?

Fissa un appuntamento  Fissa un appuntamento

Richiedi informazioni

Clicca su Leggi per aprire l'informativa
* Questi campi sono obbligatori
Affiliato
Industriale Lecco Srl
Corso Carlo Alberto, 50 23900 Lecco (LC)

Il nostro staff


  • Alesjon Brakaj
    Collaboratore

  • Carlotta Cavasino
    Collaboratrice

  • Gaia Marino
    Coordinatrice

  • Gabriele Cucchi
    Affiliato
Corso Carlo Alberto, 50 23900 Lecco (LC)
Zona: Lecco
Mostra su mappa
Affiliato
Industriale Lecco Srl
Corso Carlo Alberto, 50 23900 Lecco (LC)

2026 Tecnocasa Franchising S.p.A. - P. IVA 08365160152 - Via Monte Bianco 60/A 20089 Rozzano (MI). Ogni agenzia ha un proprio titolare ed è autonoma. Privacy policy | Policy utilizzo | Cookie policy