Capannone in vendita

Valmadrera, Viale Promessi Sposi
€ 600.000
Prezzo aggiornato
2 locali 2 locali
600 Mq 600 Mq
2 bagni 2 bagni

Capannone in vendita

Valmadrera, Viale Promessi Sposi

Descrizione annuncio

COSA SAPERE DELL'IMMOBILE

PER INFORMAZIONI ED APPUNTAMENTI CHIAMA 0341 246647

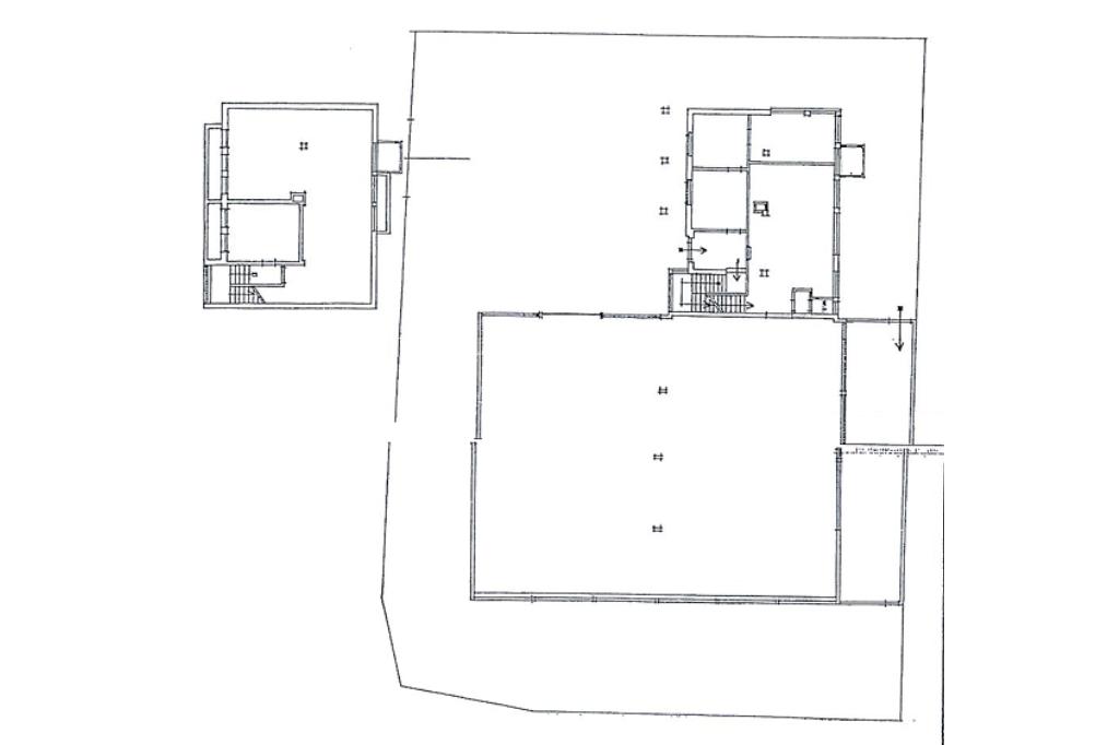
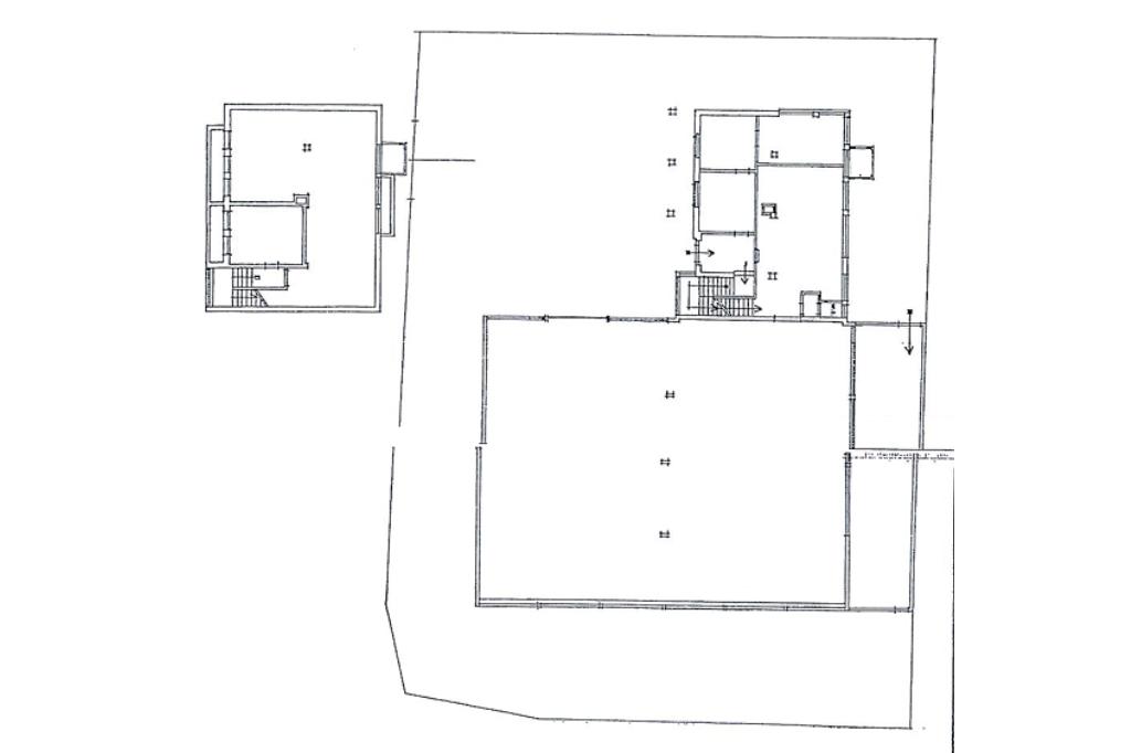
Il lotto proposto in vendita ha una superficie complessiva di circa 735 metri quadrati disposti su tre livelli, di cui circa 600 metri quadrati di capannone e circa 135 metri quadrati di abitazione. Completano la proprietà circa 650 metri quadrati di area esterna.

DESCRIZIONE E PARTICOLARITA'

Il capannone misura circa 600 metri quadrati, attualmente si suddivide in due locali, e presenta due servizi igienici. La struttura ha un’altezza di circa 5,00 metri con altezza sottotrave di 5,00 metri, dispone di un cancello largo circa 6,00 metri e di due portoni alti circa 4,00 metri. La struttura presenta l’impianto di riscaldamento, l’impianto elettrico e d’illuminazione, è dotata di montacarichi e dell’antincendio a idranti. La proprietà è recintata.

UBICAZIONE E CONTESTO

Il capannone si trova nel Comune di Valmadrera e dispone di 15 posti auto all'interno dell'area.

Mostra tutto

Nelle vicinanze

Trasporto pubblico Trasporto pubblico
stazione di Valmadrera
stazione di Valmadrera
470 m
stazione di Lecco
stazione di Lecco
2,5 Km
Bus
Bus
2,0 Km
Località piazzale Alpini
Località piazzale Alpini
2,1 Km
Valmadrera
1,1 Km
Ricariche auto elettriche Ricariche auto elettriche
Valmadrera Sabatelli | EnelX
160 m
Evbility per AIROLDI ENZO Meccatronico VALMADRERA
430 m
Hotel Promessi Sposi & Ristorante Da Giovannino
1,1 Km
Acelenergie Canottieri Lecco
1,9 Km
ACELENERGIE imbarcadero LECCO
1,9 Km
Scuole Scuole
Scuola Secondaria di Primo Grado L.B.Vassena
170 m
Scuola Primaria Giacomo Leopardi
910 m
Scuola Nautica Patenti
1,0 Km
Scuola secondaria di Malgrate
1,0 Km
Liceo Scientifico e Musicale Giovanni Battista Grassi
2,4 Km
Farmacia Farmacia
Farmacia
320 m
Farmacia Caserta
1,1 Km
Farmacia Internazionale
2,1 Km
Equì
2,1 Km
Farmacia Centrale
2,2 Km
Supermercati Supermercati
MD
440 m
EuroSpin
610 m
Punto Simply
2,2 Km
Conad
2,4 Km
Bennet
2,7 Km
Negozi Negozi
Sigma
290 m
Negozi
530 m
Panificio Beretta
990 m
Sara D.
2,0 Km
Panificio Pazzoni
2,0 Km
Bar Bar
Natante Dalia
1,9 Km
Bar
2,0 Km
Sunflower
2,1 Km
Enoteca Cantun del Vin
2,2 Km
Bar Margherita
2,3 Km
Ristoranti Ristoranti
Il Galeone
750 m
Sushi House
860 m
Baia di Parè
1,1 Km
Agriturismo La Fattoria
1,1 Km
Ristorante "Promessi Sposi"
1,2 Km
Mostra tutto

Caratteristiche

Rif.:
61133342
Piano:
Terra di 3
Totale piani:
3
Posti auto:
15
Condizionamento:
Assente
Ascensore:
No
Mostra tutto
Prezzo Prezzo
€ 600.000
Rata mutuo Rata mutuo
€ 2.828 / mese
Spese annue Spese annue
€ 0
Proponi il tuo prezzoProponi il tuo prezzo

Classe Energetica

Questo immobile è esente da classe energetica
Anno di costruzione:
1970
Riscaldamento:
Autonomo
Tipo impianto:
A radiatori
Tipo alimentazione:
Altro

Prezzo ridotto di €1 (8%%)

Ti interessa visionare l'immobile?

Fissa un appuntamento  Fissa un appuntamento

Richiedi informazioni

Clicca su Leggi per aprire l'informativa
* Questi campi sono obbligatori

Calcola il tuo mutuo

Semplice e senza impegno
Anticipo

( % )
Mutuo

( % )

pochi semplici passi

inserisci i tuoi dati
Questionario completato
Grazie per aver richiesto un appuntamento senza impegno con un nostro Consulente del Credito e Assicurativo.

Hai inserito correttamente tutti i dati necessari e a breve riceverai una e-mail con un link da convalidare per inviare i tuoi dati.
Affiliato
Industriale Lecco Srl
Corso Carlo Alberto, 50 23900 Lecco (LC)

Il nostro staff


  • Alesjon Brakaj
    Collaboratore

  • Carlotta Cavasino
    Collaboratrice

  • Gaia Marino
    Coordinatrice

  • Gabriele Cucchi
    Affiliato
Corso Carlo Alberto, 50 23900 Lecco (LC)
Zona: Lecco
Mostra su mappa
Affiliato
Industriale Lecco Srl
Corso Carlo Alberto, 50 23900 Lecco (LC)

2026 Tecnocasa Franchising S.p.A. - P. IVA 08365160152 - Via Monte Bianco 60/A 20089 Rozzano (MI). Ogni agenzia ha un proprio titolare ed è autonoma. Privacy policy | Policy utilizzo | Cookie policy