Negozio in vendita

Valmadrera, Via Bovara
€ 110.000
1 locale 1 locale
70 Mq 70 Mq
1 bagno 1 bagno

Negozio in vendita

Valmadrera, Via Bovara

Descrizione annuncio

COSA SAPERE DELL'IMMOBILE

PER INFORMAZIONI ED APPUNTAMENTI CHIAMA 00341 246647

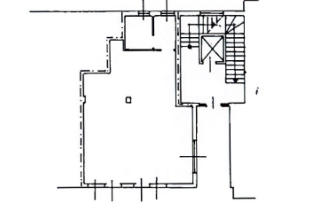
Proponiamo in vendita un negozio con superficie di circa 70 metri quadrati disposti al piano terra di una struttura di quattro livelli.

DESCRIZIONE E PARTICOLARITA'

Il negozio misura circa 70 metri quadrati, è disposto al piano terra e attualmente è un unico open space con un servizio igienico a norma disabili. La struttura ha un'altezza di circa 3,00 metri, è particolarmente luminosa grazie alla presenza di due ampie vetrine ed è caratterizzata da una pavimentazione con piastrelle. L'immobile è cablato e presenta l'impianto di riscaldamento, l'impianto elettrico, di illuminazione, l'impianto d'allarme e i rilevatori antincendio.

UBICAZIONE E CONTESTO

Il locale si trova nel centro del Comune di Valmadrera, a pochi metri dalla Strada Provinciale 583 ed esternamente gode di circa una trentina di posti auto pubblici.

Mostra tutto

Nelle vicinanze

Trasporto pubblico Trasporto pubblico
stazione di Valmadrera
stazione di Valmadrera
710 m
stazione di Lecco
stazione di Lecco
2,7 Km
Bus
Bus
2,2 Km
Località piazzale Alpini
Località piazzale Alpini
2,2 Km
Valmadrera
1,2 Km
Ricariche auto elettriche Ricariche auto elettriche
Valmadrera Sabatelli | EnelX
370 m
Evbility per AIROLDI ENZO Meccatronico VALMADRERA
680 m
Hotel Promessi Sposi & Ristorante Da Giovannino
1,4 Km
ACELENERGIE imbarcadero LECCO
2,2 Km
Acelenergie Canottieri Lecco
2,2 Km
Scuole Scuole
Scuola Secondaria di Primo Grado L.B.Vassena
180 m
Scuola Primaria Giacomo Leopardi
710 m
Scuola Nautica Patenti
1,2 Km
Scuola secondaria di Malgrate
1,3 Km
Liceo Scientifico e Musicale Giovanni Battista Grassi
2,6 Km
Farmacia Farmacia
Farmacia
440 m
Farmacia Caserta
1,0 Km
Farmacia Internazionale
2,4 Km
Equì
2,4 Km
Farmacia San Nicolò
2,4 Km
Supermercati Supermercati
MD
550 m
EuroSpin
870 m
Punto Simply
2,5 Km
Conad
2,6 Km
Bennet
3,0 Km
Negozi Negozi
Sigma
260 m
Negozi
770 m
Panificio Beretta
1,2 Km
Sara D.
2,2 Km
Panificio Pazzoni
2,2 Km
Bar Bar
Natante Dalia
2,1 Km
Bar
2,2 Km
Sunflower
2,3 Km
Enoteca Cantun del Vin
2,4 Km
Bar Mojito
2,6 Km
Ristoranti Ristoranti
Il Galeone
700 m
Agriturismo La Fattoria
850 m
Sushi House
1,1 Km
Baia di Parè
1,1 Km
Al Terrazzo
1,3 Km
Mostra tutto

Caratteristiche

Rif.:
61113167
Piano:
Terra di 4
Totale piani:
4
Condizionamento:
Assente
Ascensore:
No
Riscaldamento:
Autonomo
Mostra tutto
Prezzo Prezzo
€ 110.000
Rata mutuo Rata mutuo
€ 519 / mese
Spese annue Spese annue
€ 200
Proponi il tuo prezzoProponi il tuo prezzo

Classe Energetica

Questo immobile è esente da classe energetica
Anno di costruzione:
1995
Riscaldamento:
Autonomo
Tipo impianto:
A radiatori
Tipo alimentazione:
Metano

Ti interessa visionare l'immobile?

Fissa un appuntamento  Fissa un appuntamento

Richiedi informazioni

Clicca su Leggi per aprire l'informativa
* Questi campi sono obbligatori

Calcola il tuo mutuo

Semplice e senza impegno
Anticipo

( % )
Mutuo

( % )

pochi semplici passi

inserisci i tuoi dati
Questionario completato
Grazie per aver richiesto un appuntamento senza impegno con un nostro Consulente del Credito e Assicurativo.

Hai inserito correttamente tutti i dati necessari e a breve riceverai una e-mail con un link da convalidare per inviare i tuoi dati.
Affiliato
Industriale Lecco Srl
Corso Carlo Alberto, 50 23900 Lecco (LC)

Il nostro staff


  • Alesjon Brakaj
    Collaboratore

  • Carlotta Cavasino
    Collaboratrice

  • Gaia Marino
    Coordinatrice

  • Gabriele Cucchi
    Affiliato
Corso Carlo Alberto, 50 23900 Lecco (LC)
Zona: Lecco
Mostra su mappa
Affiliato
Industriale Lecco Srl
Corso Carlo Alberto, 50 23900 Lecco (LC)

2026 Tecnocasa Franchising S.p.A. - P. IVA 08365160152 - Via Monte Bianco 60/A 20089 Rozzano (MI). Ogni agenzia ha un proprio titolare ed è autonoma. Privacy policy | Policy utilizzo | Cookie policy